愛知県東海市の工場・倉庫・事業用不動産の専門不動産会社【LogiLaboロジラボ】にお任せください。事業承継からM&Aにも対応し専門業者ならではの知識や経験で物件をご紹介いたします。




- 賃料
- 198万円
- 種別
- 工場
- 敷金
- 4ヶ月
- 礼金
- 1ヶ月
-
- 所在地
- 愛知県東海市浅山3丁目
- 交通
物件詳細
| 築年月 | 2004/7 | 新築/中古 | |
|---|---|---|---|
| 面積 | 1350.67m² | 計測方式 | |
| バルコニー | 向き | ||
| 建物階数 | 地上1階 | 部屋階数 | |
| 建物構造 | 鉄骨造 | ||
| 間取内容 | |||
| 駐車場 | 取引態様 | 仲介 | |
| 引渡/入居時期 | 現況 | ||
| 地目 | 用途地域 | 工業専用地域 | |
| 都市計画 | 市街化区域 | 地勢 | |
| 土地面積 | 2836.99m² | 土地面積計測方式 | |
| 周辺環境 | |||
| 設備・条件 | 工業専用地域 ホイストクレーン | ||
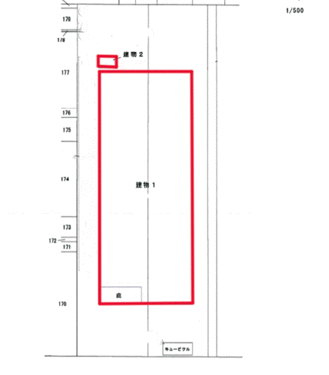
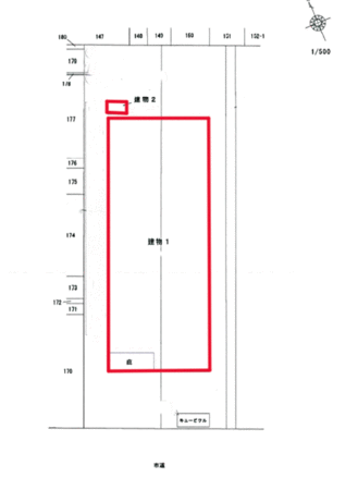
| 物件番号 | 東海市浅山三丁目倉庫工場 | ||
| 特記事項 | ・付属建物(機械室)あり 床面積12.39㎡
・1階1188.01㎡ 約359.37坪 ・2階162.66㎡ 約49.2坪 ・設備等含め現況渡し ・キュービクル、浄化槽、自火報、エアコン ・下水接続予定 ・動作保証無し ・光熱費、水道代、ガス代等については実費とする ・ホイスト:1.5t1台、1t1台、0.5t2台 あり ・雨漏りあり ・入居日は2026年1月以降相談になります。 ・2055年5月末日までの定期借家契約 |
||
Loading...
※物件掲載内容と現況に相違がある場合は現況を優先と致します。
Contact
お問い合わせはこちらからお寄せください
お電話からのご予約・お問い合わせ
TEL050-3595-0025
営業時間9:00~18:00
WEBからのご予約・お問い合わせ




