名古屋市内の大型マルチ倉庫となります。
荷物用エレベーター、垂直搬送機付きの3000坪 大型倉庫物件です。
搬入用バースあり、天井高で5m以上です。10t車、40フィートトレーラー搬入可能です。
敷地内駐車場もございます。
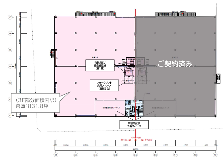
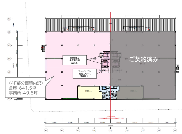
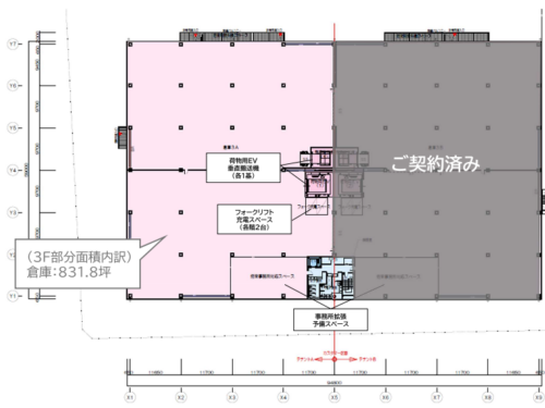
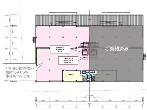
倉庫部分:9,458.0㎡ (2,861.0坪)
搬入バース:675.3m2(204.3坪)
事務所部分:349.8m2(105.8坪)
耐荷重 倉庫部分:1,500kg/m2 事務所部分:290kg/m2
内覧可能となります!詳細につきましてもお気軽にお問い合わせください。































