• 賃料
    19万円
  • 種別
    倉庫
  • 共益費・管理費
    20,000円
  • 礼金
    1ヶ月
  • 保証金
    40万円
  • 償却・敷引金
    100%
  • 所在地
    愛知県名古屋市熱田区四番1丁目  
  • 交通

物件詳細

築年月2010/1 新築/中古
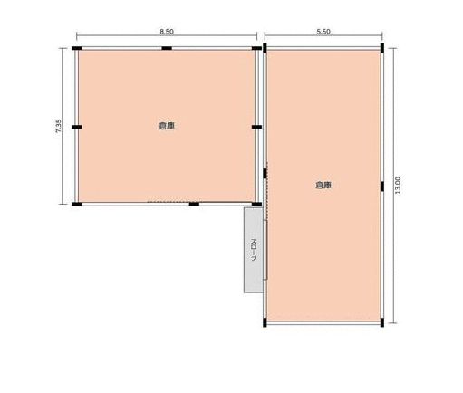
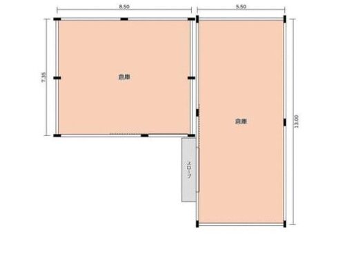
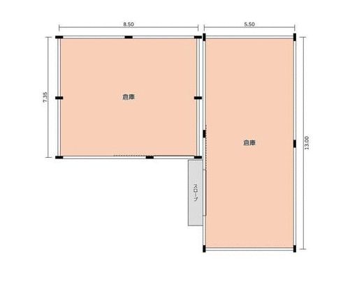
面積 133.90m² 計測方式
バルコニー 向き
建物階数 地上1階  部屋階数
建物構造 その他
間取内容
駐車場 取引態様 仲介
引渡/入居時期 現況
地目 用途地域 商業地域
周辺環境
設備・条件
物件番号 貸テント倉庫 名古屋市熱田区 133.90m²(40.50坪)
Loading...
※物件掲載内容と現況に相違がある場合は現況を優先と致します。

こちらの物件もおすすめです