自動車整備工場・車屋さんにもおすすめ!
愛知県名古屋市港区の貸工場・貸倉庫・事業用不動産の専門不動産会社【LogiLaboロジラボ】にお任せください。専門業者ならではの知識や経験で物件をご紹介いたします。




- 賃料
- ご成約済
- 種別
- 工場
- 敷金
- 210万円
- 礼金
- 70万円
- 償却・敷引金
- 50%
-
- 所在地
- 愛知県名古屋市港区小碓2丁目
- 交通
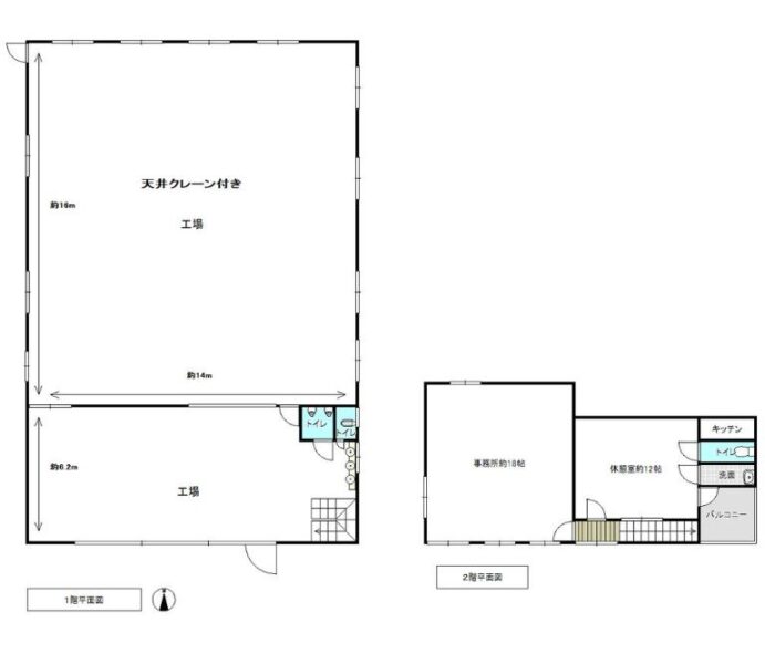
物件詳細
| 築年月 | 1991/6 | 新築/中古 | |
|---|---|---|---|
| 面積 | 410.88m² | 計測方式 | |
| バルコニー | 向き | ||
| 建物階数 | 地上1階 | 部屋階数 | |
| 建物構造 | 鉄骨造 | ||
| 間取内容 | |||
| 駐車場 | 取引態様 | 仲介 | |
| 引渡/入居時期 | 現況 | ||
| 地目 | 用途地域 | 準工業地域 | |
| 都市計画 | 市街化区域 | 地勢 | |
| 土地面積 | 595m² | 土地面積計測方式 | |
| 周辺環境 | |||
| 設備・条件 | 準工業地域 ホイストクレーン | ||
| 物件番号 | 貸工場 名古屋市港区 鉄骨造1F:410.88㎡(124.29坪) | ||
| 特記事項 | 1階87.99㎡ 2階83.31㎡ | ||
Loading...
※物件掲載内容と現況に相違がある場合は現況を優先と致します。
Contact
お問い合わせはこちらからお寄せください
お電話からのご予約・お問い合わせ
TEL050-3595-0025
営業時間9:00~18:00
WEBからのご予約・お問い合わせ





